FEED    ABOUT


Ginzburg & Legarreta
by Tianyu yang

A SHORT STUDY ON MOISEI GINZBURG’S NARKOMFIN & JUAN LEGARRETA’S CASA OBRERA MINIMA



In the aftermath of World War I, architects worldwide faced an unprecedented housing shortage that impacted all sectors of society. Throughout the 1920s, Modernist architects feverishly explored housing typologies that could satisfy the contemporary needs of the working class. In Western Europe, the theory and practice of “minimum dwelling” emerged — a response that was absorbed and canonized through subsequent architectural scholarship. By contrast, experimental solutions for worker’s housing in other parts of the world were unfairly overlooked. This was the case for the seminal Narkomfin project, designed by Moisei Ginzburg in the U.S.S.R., and Casa Obrera Minima by Mexican architect Juan Legarreta. Unlike their Western European counterparts - who focused on rethinking and improving everyday life in the urban commons through architecture - Ginzburg and Legarreta aimed to catalyze greater change through their work, designing radical spaces for the social and political transformation of their respective societies.


CONTEXT I: USSR’S KOMMUNALKA IN THE 20S

In the 1920s, the U.S.S.R. faced a major housing crisis. In part, this shortage was produced by the First Five Year Plan, the agenda of which promoted rapid industrialization and pushed peasants from the countryside to factories in the country’s major cities. The cities’ new workers instantly overcrowded the limited pre-revolution rental family houses. At times, multiple families had to occupy the same apartment.

Following the Russian Revolution, a number of classical mansions had been adapted into multifamily houses. When subdivisions for smaller rooms were put in, the narrow central corridor would lack access to air and daylight. Families from completely different backgrounds were crammed together in these “Kommunalka” apartments. No one could ever be “alone.”

“Kommunalka – a term of endearment and deprecation – was a result of the post-revolutionary expropriation and resettlement of private apartments in the urban centers; it consists of the individual or family rooms (neither living rooms, bedrooms, nor studies, but all-purpose rooms that can perform any function) and ‘places of communal use’, a euphemistic expression for a shared bathroom, corridor and kitchen that usually serves as the neighbors’ battleground. Here one encounters endless schedules of ‘communal duties’, and endless scolding from fellow neighbors.”

-Svetlana Boym, The Archaeology of Banality: A Soviet Home, 1994




VISION I: GINZBURG’S F UNIT

Designed by Moisei Ginzburg and Ignaty Milinis in 1928, Narkomfin is a transitional project in a series of social housing experiments initiated by the OSA Group (Organization of Contemporary Architects). Among the unit types developed in Narkomfin, F Unit was particularly significant, as it successfully represented the social concepts formulated by OSA and Ginzburg in the specific historic moment.

Ginzburg’s F Unit in Narkomfin uses a smart scissor section to maximize the floor-to-volume ratio. The shared, single-loaded corridor occurs on every other level, providing a landing to either the apartment above (A), or the apartment below (B). Not only did this architectural gesture maximize the number of units that could fit vertically into the building, but also did it guarantee sufficient lighting and cross-ventilation for all of the units. As the diagram shows, the unit above F-a, has three levels whereas F-b has two levels. The toilet is located by the entrance (the same level as corridor), and the shower is located next to the bedroom. All the auxiliary spaces have decreased ceiling heights, while the living rooms are always 1.5 level high, allowing more sunlight to come in. Both F-a and F-b have cross ventilation, thanks to the single-loaded organization of the building.

The “new way of life” or “byt” points to the belief that “the working class will not accept the realities as they are, it rejects the old forms of culture and the old domestic order.” Ginzburg wrote in the critique of the “minimum habitation,” “...this enormous amount of work… the point of which is to preserve the primitive individual household and to preserve and cultivate the bourgeois family as an economic unit where some members of the family are economically dependent on others.” The underlying agenda, in this case, was the emancipation of women from the domestic household, so as to encourage women to join the general workforce. By replacing the individual housekeeping with a “socialized housekeeping,” Ginzburg proposed the theoretical grounds for the substitution of the individual kitchen with communal kitchen and dining halls, the children’s playroom with community kindergartens and daycares, the individual laundry facilities with communal laundry halls and drying rooms.

Although the ultimate goal is to completely take out the individual kitchen from the household, Ginzburg soberly understood the danger of over-crowding. As a critique of the kommunalka houses and other extreme communal living proposals, Ginzburg kept a kitchen component in all the units as an “intermediate” solution. Additionally, he argued that by limiting the footprint of the units and the number of rooms within the units, it is possible to avoid the overcrowding since any further division of the unit is made impossible.


CONTEXT II: MEXICO CITY’S LABOR INFLUX IN THE 30S

Obregón Santacilia’s “Minimum Working House” competition was held in 1932, in the wake of the industrialization of Mexico, the Revolution, and the expansion of Mexico City. Industrialization brought about challenges and opportunities for the influx of laborers. Many were “reflexive,” as Alan Knight calls them, to the revolution. Their economic vulnerabilities and their strong urban links “rendered them dependent allies of the state,” and the state “had to make concessions and take note of working-class grievances.”

Who comprised the working class addressed by these remarks? Conventionally speaking, it was the artisans and proletarians that made up the urban working class in Mexico in the 1910-20s. Alan Knight, however, introduced complexity and fluidity to the division. Country-wide speaking, according to him, there were four types of artisans: the village artisans (potters, weavers, carpenters), who survived the industrialization, but remained marginal to the urban working class; the declining artisans, who were struggling in direct competition against the factory production of textiles, shoes, hats and so on; the new urban artisans, who embraced the urban economy like public transit, utilities, and constructions, standing in between the rural migrants and the classic proletarians; and finally, the aspiring artisans, who were literate and politically aware, including the white collar workers and commercial middle class. Compared to the village artisans and the delicing artisans, the new urban artisans and aspiring artisans exhibited a higher level of compatibility to the new urban environment and proximity to the bourgeoisie. Such qualities rendered them visible to the bourgeoisie architects.

For Obregón Santacilia, Alfonso Palleres, Juan Legarreta and other elite architects and scholars, the primary grievance of the working class in the urban context is the poor living conditions. “The poor, the workers and the middle-class need to be taught how to live (up to a modern standard),” Palleres advocated. Legarreta famously asserted: “People living in jacales and redondos cannot speak architecture. We will build the people’s houses. Rhetorical aesthetes—wish they were all dead—will make their speeches later.”


 
VISION II: LEGARRETA’S SOCIAL HOUSING EXPERIMENTS

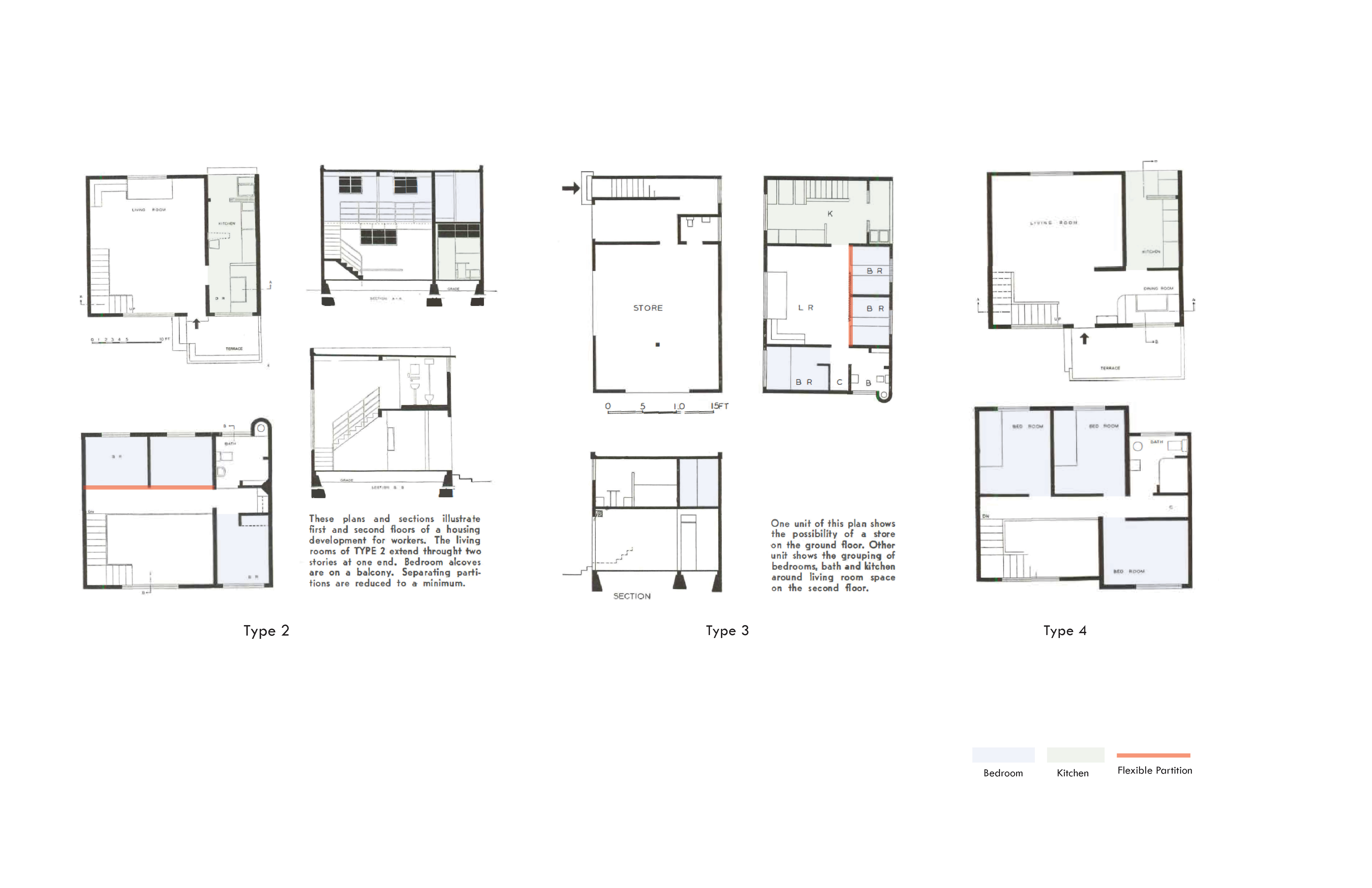
In discussing questions of “identity” and “style,” Alejandro Hernández-Gálvez concluded that “Legarreta thought of new architecture neither in aesthetic terms nor as a problem of identity—at least not an aesthetic identity—but in political and social terms.” If Legarreta had more time before his premature death in 1934, he would likely have invested more energy in designing social space on a larger scale, as he began to include communal facilities such as schools and sports fields in the Vaquita Housing complex. However, Legarreta was able to achieve his radical social vision for workers’ housing at the building scale. In his competition entry for “Minimum Working House” in 1932, he proposed four types of worker’s houses.



Unit Type 3 is an outstanding example of how Legarreta’s progressive social ideas are realized through reinvention of the social housing typology. Instead of making the ground level into living quarters, Legarreta transforms it into a commercial space. The “shop” allows the working-class family to gain additional income through small businesses. At the same time, the family shops formed a social space. People from the neighborhood could gather outside the storefronts, bringing conversations into the streets. Through this simple gesture, Legarreta designed a worker’s house that leaves room for the formation of community and blurs the boundary between domestic space, social space and commercial space. While Legarreta shortens the distance between these programs, he does not limit family privacy; upstairs, the living room, kitchen and bedroom can be accessed through a side entrance, which is undisturbed and uninterrupted by the “shop” space.



Much like Type 3, Type 2 Unit is a duplex house. For this unit type, Legarreta designed a spacious double-height living room, which is illuminated by a large, industrial scale window that is uninterrupted between the two levels. This architectural gesture shows a clear influence by Le Corbusier. In Maison Ternisien, for example, Corbusier designed a double-height living room/workshop, which is connected to an open corridor on the second level and a bedroom with a flexible partition. A compressed single-level kitchen and dining area is located on the side, spatially differentiated from the living room/workshop. All of these features can be found in Legarreta’s Type 2. However, while Le Corbusier had designed a mansion for a bourgeois artist-musician couple, Legarreta wanted to give the same kind of double-height space, open plan, modern kitchen and bathroom, and flexible partition system to Mexican workers and artisans.

Unfortunately, neither of Legarreta’s worker’s housing ideas were acknowledged on the “main stage” of international social housing experiments. The modernist architects, many of who participated in the CIAM conferences since 1928, went on to develop the modern “minimum dwelling” typology as we know it today: dense, highly functional, highly simplified domestic units that are stacked together. The commercial function was eliminated from the domestic units, as was the community-based social function (i.e. larger living room). Over time, the urban working class no longer had the agency to participate in the informal urban economy as small business owners, nor were they able to afford housing community functions within their private units. In this sense, Legarreta’s social experiments in worker’s housing is especially important, as he recognized that the workers were not passive productive subjects in the urban economy, but an active part of a society that could participate in different modes of production and political movements.


When confronting the labor issue, Ginzburg and Legarreta were designing to change the workers’ living conditions, as well as their social and economic status. In both cases, the living rooms are given a primary importance which helps to bring the family members together. The bedrooms are treated as a secondary space — with a decreased footprint and a lowered ceiling height — in order to give more space to the social functions within the houses. Upon closer inspection, it is cear that Ginzburg and Legarreta aimed to create very different workers’ communities. For Ginzburg, Narkomfin challenged both the extremist’s tendency to erase private life and the post-revolution legacy of gender equality. Although Ginzburg’s project is by no means perfect, his role as the chief architect of OSA made him an important actor in the totalitarian state. The domestic woman who was liberated from the housework was quickly turned into a working woman, whose extended public life was put under a wider social surveillance. The community created in the name of collective living becomes a de facto centralized community. In turn, Legarreta’s project proposed an alternative model of collective living, which allows space for individualized economic growth and political discussions independent from the state’s agenda. Such a community is decentralized by nature and is formed by free will. Legaretta aimed to design a working class community with agency to choose,  grow and self-organize. By this measure, Juan Legarreta’s radical stance is severely under-estimated, particulary under a contemporary lens.




BIBLIOGRAPHY


Juan Legarreta: vivienda obrera mexicana posrevolucionaria, Jorge Oscar Yepes Rodríguez, 2016

The Working Class and The Mexican Revolution, c. 1900-1920, Alan Knight, 1984

Beyond the Super Square, Identity as Style, Alejandro Hernández-Gálvez, 2014

The New Architecture in Mexico, Juan Fernandez and Ernest Born, 1937

Dwelling, Moisei Ginzburg, 1934

The Minimum Dwelling, Karel Teige, 1932











about  |  contact  |  instagram








about  |  contact  |  instagram